Mmmm..... cookies...

Afdeling

Lynæsvej
268-0

Lynæsvej 2C, 4C, 6C, 8C, 10C, 12C

Boliginfo

Adresser

Lynæsvej 2-12 A-E,
4700 Næstved

Boligtype

Antal boliger

6

Energimærke

D

Andet

Altan: Nej
Elevator: Nej
Husdyr tilladt: Ja

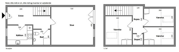
Værelser

4

Størrelser

88 m2

Husleje

6917 kr.

Indskud

22600 kr

Ventetid

5 år - 10 år

Skriv dig op her!